House and circa 5.75 Acres at Kilmacomma, Clonmel, Tipperary, E91X048

  • Unconditional Online Auction Sale
  • Bedrooms: 3
  • Bathrooms: 2

House and Lands of circa 2.33 HA/5.75 acres.

Location

E91-X048

Description

For sale by online auction Bidnow.ie on Thursday 28th May 2026 from 1pm-2pm. Reserve of €140,000
REA Stokes and Quirke are delighted to offer for sale this development opportunity to acquire a superbly located residence requiring complete repair and modernisation on circa 2.33 HA/5.75 acres. This Lifestyle holding is located within walking distance of the centre of Clonmel. The house is on a site of c. 0.667 acre contained in folio WD3233F. This property would be suitable for the Derelict Homes Grant (subject to meeting certain criteria). The lands extending to c. 5.09 acres are contained in folio WD12633. The lands are free draining and are in permanent pasture laid out in one block with the benefit of a separate access to same off the public road. The views from the property over Clonmel town and the surrounding countryside needs to be seen to be truly appreciated.
Shed 1- 2.55m x 6.3m
Storage under the actual house/Garage- 7.45m x 3.3m
Pump house/shed: 1.8m x 2.38m

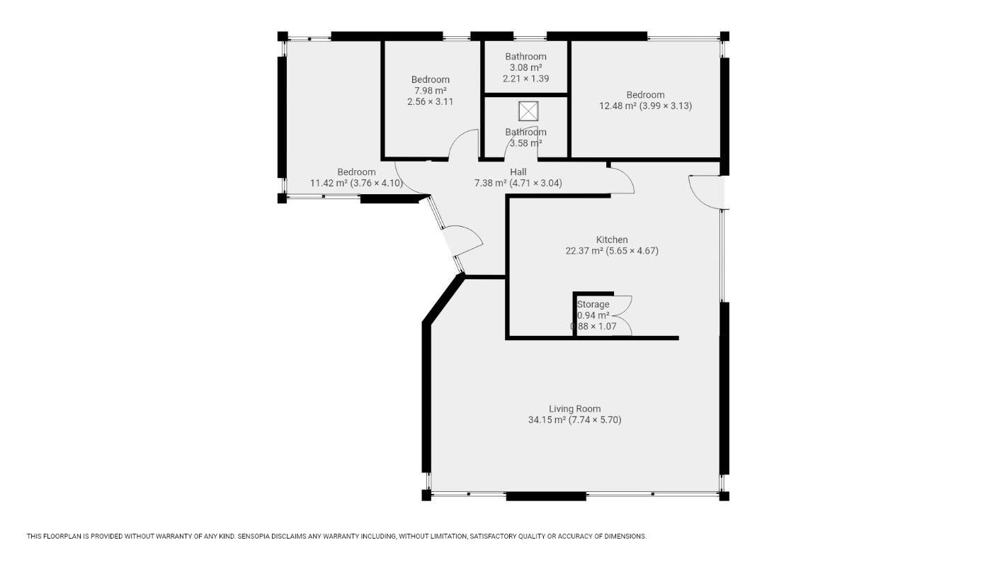
Accommodation

Hallway 4.71m x 3.04m (15.45ft x 9.97ft)

Kitchen 5.65m x 4.67m (18.54ft x 15.32ft)

Utility Room 0.88m x 1.07m (2.89ft x 3.51ft)

Living Room 7.74m x 5.70m (25.39ft x 18.70ft)

Bedroom 1 3.76m x 4.10m (12.34ft x 13.45ft)

Bedroom 2 2.56m x 3.11m (8.40ft x 10.20ft)

Bathroom 1 2.21m x 1.39m (7.25ft x 4.56ft)

Bedroom 3 3.99m x 3.13m (13.09ft x 10.27ft)

Bathroom 2 2.20m x 1.39m (7.22ft x 4.56ft)

TOTAL FLOOR AREA: 108.000 SQ MTRS / 1162.512000 SQ FT

BER No: 119228062

Loading the bidding panel...

Terms & Conditions to bid on this Property

Legal Documents

Log in to view legal documents

Office Contact

Mr John Stokes REA Stokes & Quirke 052 6121788 info@reastokesandquirke.ie
052 6121788

Vendors Solicitor

john carroll
0526121123

Make an Enquiry

Submit an enquiry and someone will be in contact shortly.

 
*  
*  
*
*
*

Share